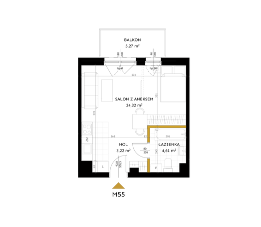
Legenda
  • ściany działowe
  • ściany konstrukcyjne
  • wejście do lokalu
Położenie lokalu
położenie lokalu

Mieszkanie 43

Budynek 1

Sprzedane
Powierzchnia
64,04 m²
Pokoje
3 pokoje
Piętro
5 piętro
Cena brutto
-
Cena brutto/m²
-
Cena brutto (kalkulacja)
64,04 m² x 9 150 zł = 585 966 zł
3D
Podgląd 3D

Zobacz również

Corso
Podgląd 3D
Dostępne
Mieszkanie 6
Budynek
Budynek 1
Powierzchnia
32,90 m²
Pokoje
1 pokój
Piętro
1 piętro
Cena brutto
Historia cen
325 710 zł
Szczegóły
Inne świadczenia pieniężne
Corso
Podgląd 3D
Dostępne
Mieszkanie 18
Budynek
Budynek 1
Powierzchnia
60,92 m²
Pokoje
3 pokoje
Piętro
2 piętro
Cena brutto
Historia cen
563 510 zł
Szczegóły
Produkty dodatkowe obowiązkowe
Inne świadczenia pieniężne
Corso
Podgląd 3D
Dostępne
Mieszkanie 38
Budynek
Budynek 1
Powierzchnia
60,92 m²
Pokoje
3 pokoje
Piętro
4 piętro
Cena brutto
Historia cen
563 510 zł
Szczegóły
Produkty dodatkowe obowiązkowe
Inne świadczenia pieniężne

Strona internetowa corso.pl (dalej „Strona”) nie ma charakteru publicznego zapewnienia w rozumieniu art. 556[1] kodeksu cywilnego ani oferty w rozumieniu art. 66[1] kodeksu cywilnego. Przedstawione na Stronie wizualizacje, animacje, modele budynków i tym podobne materiały, mają charakter wyłącznie poglądowy i informacyjny. Mogą one odbiegać od docelowego, rzeczywistego wyglądu budynków i ich zagospodarowania terenu, otoczenia w szczególności w zakresie kolorystyki oraz konstrukcji. Wizualizacje przedstawione na Stronie nie stanowią próbki lub wzoru. W szczególności, opisane na Stronie elementy planowanej infrastruktury i usług (m.in. skwer miejski z kawiarnią, market spożywczy, lokale usługowe i gastronomiczne, punkt przedszkolny, paczkomaty) stanowią jedynie planowaną koncepcję zagospodarowania. Ich realizacja, ostateczny kształt oraz funkcjonowanie są zależne od decyzji podmiotów trzecich (w tym innych inwestorów, przyszłych właścicieli lokali) oraz od zawarcia stosownych umów z dostawcami usług, na co deweloper nie ma wyłącznego wpływu i co nie stanowi części jego oferty. Zagospodarowanie terenu sąsiedniego, niezwiązane bezpośrednio z inwestycją, jest jedynie przykładem i nie będzie realizowane w ramach inwestycji. Szczegółowe i wiążące informacje dotyczące inwestycji zawarte są w prospekcie informacyjnym, umowie deweloperskiej oraz projekcie budowlanym.

© 2026 VFM. Wszystkie prawa zastrzeżone.

Polityka prywatności